Exklusives Architektenhaus im Zentrum von Asbach - Wohnen, Wellness & Arbeiten perfekt vereint
Objektart
Adresse
Objektdaten
Informationen
Ausstattung
Details
Dieses moderne Architektenhaus aus dem Jahr 2003, mitten im Herzen von Asbach, bietet Ihnen den idealen Rahmen, um Ihre eigenen Wohnideen zu verwirklichen und Ihre persönliche Handschrift einzubringen.
Schon beim Betreten spüren Sie die Großzügigkeit: Der offen gestaltete Wohn- und Essbereich mit integrierter Küche, eleganter Bar und Kamin bildet das Herzstück des Hauses. Ein Ort, an dem man zusammenkommt, lacht und den Tag bei einem guten Glas Wein entspannt ausklingen lässt.
Ein echtes Highlight ist der beheizte Wintergarten: Ob bei strahlendem Sonnenschein oder Regen - hier genießen Sie das ganze Jahr über Ihre persönliche Auszeit in gemütlicher Atmosphäre.
Auch in puncto Komfort überzeugt das Haus auf ganzer Linie: Mit Energieeffizienzklasse A, moderner Luftwärmepumpe und Fußbodenheizung wohnen Sie nicht nur stilvoll, sondern auch zukunftsorientiert und energieeffizient.
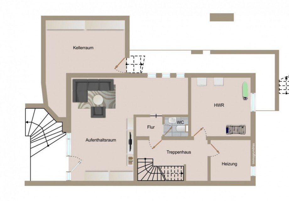
Für alle, die Arbeit und Leben ideal verbinden möchten, bietet das Untergeschoss perfekte Voraussetzungen: Ein großzügiges Büro mit separatem Eingang, Gäste-WC und eigener Terrasse schafft die ideale Umgebung für konzentriertes Arbeiten, Homeoffice oder eine selbstständige Tätigkeit.
Im Obergeschoss erwartet Sie Ihr privater Rückzugsort: Ein großzügiges Schlafzimmer mit Balkon sowie ein außergewöhnliches Wellnessbad, das keine Wünsche offenlässt - mit Eckbadewanne, Sauna, Dampfdusche, großer begehbarer Dusche und zusätzlichem Raum für Gäste oder Hobbys. Ihr ganz persönlicher Spa-Bereich im eigenen Zuhause.
Das rund 400 m² große Grundstück ist bewusst pflegeleicht angelegt - perfekt für alle, die ihre Freizeit genießen möchten, statt sie mit Gartenarbeit zu verbringen. Einfach den Grill anwerfen und den Feierabend genießen.
Und das Beste: Sie wohnen zentral und dennoch angenehm ruhig. Ärzte, Einkaufsmöglichkeiten und alles, was Sie im Alltag benötigen, erreichen Sie bequem zu Fuß.
Ein Zuhause, das nicht nur Raum bietet - sondern Lebensqualität.
Solche Immobilien begegnen einem nicht oft - sichern Sie sich Ihren Eindruck vor Ort und vereinbaren Sie noch heute Ihren persönlichen Besichtigungstermin.
- Energieklasse A
- Luft - Wärmepumpe von Viessmann
- Fußbodenheizung
- Doppelverglasung mit Thermo-UV-Glas
- Wintergarten
- 2 Balkone
- Große Garage mit Vorraum
- Terrasse
- pflegeleichte Außenanlage
- DSL 250MBit/s
- Glasfaser verfügbar
Willkommen im Zentrum von Asbach!
In der reizvollen Mittelgebirgslandschaft des Westerwaldes grenzt Asbach an das Siebengebirge und bildet gleichzeitig die nördliche Grenze von Rheinland-Pfalz.
Asbach, ist Zentralort der Verbandsgemeinde Asbach und ermöglicht mit seinen zahlreichen, gut geführten Fachgeschäften, einem großen Einkaufspark mit Baumarkt sowie mehreren Discounter-Filialen die Erfüllung nahezu aller Käuferwünsche.
Das medizinische Angebot reicht von Praxen der Allgemeinmedizin, der Kinderheilkunde, der Neurologie, der Anästhesiologie, der Gynäkologie, Orthopädie, Chirurgie, der Hals-, Nasen- und Ohrenheilkunde, der Zahnheilkunde und der physikalischen Therapie über Apotheken bis hin zur Kamillusklinik.
In der Ortsgemeinde Asbach befinden sich Ganztagskindergärten, Grundschulen, die Konrad-Adenauer-Realschule Plus und die Albert-Schweitzer-Sonderschule.
Sport- und Freizeitaktivitäten werden in der Verbandsgemeinde Asbach u.a. über die Vielzahl der Vereine angeboten, können aber auch in der Eishalle, der Kartbahn oder im 3D-Kino verwirklicht werden. Darüber hinaus lädt das Zentrum von Asbach mit gemütlichen Restaurants, Cafés und einer Eisdiele zum Verweilen ein. Zahlreiche gut ausgebaute Wander- und Radwege in der reizvollen Landschaft des Westerwaldes bieten ideale Möglichkeiten für Erholung in der Natur.
Die BAB A3-Anschlussstelle Bad Honnef/Linz sowie die B8 sind nur 5 Minuten entfernt und damit sind die Arbeitsplatzzentren und Städte Siegburg, Hennef, Bonn und Köln schnell erreichbar.
Die nächsten ICE-Bahnhöfe befinden sich in Siegburg/Bonn und Flughafen Köln/Bonn.
Vom kleinen Busbahnhof am Marktplatz von Asbach verkehren verschiedene Buslinien u.a. nach Bad Honnef und Eitorf. Die nächsten Bahnhöfe befinden sich in Unkel, Bad Honnef und Eitorf mit Verbindung nach Köln, Koblenz (ab Unkel bzw. Bad Honnef) und Siegen (ab Eitorf).
Asbach und seine Ortsteile bieten eine Top Infrastruktur und Wohnen zu bezahlbaren Preisen inklusive Wohlfühlfaktor!
Bei Abschluss des Kaufvertrages beträgt die Käufermaklerprovision 3,57 % inklusive MwSt., bzw. bei einem Kaufpreis unter 100.000 EUR, 5,95 % inkl. MwSt. des Gesamtkaufpreises, einschließlich aller mit dem Erwerb
zusammenhängenden Nebenabreden oder Ersatzgeschäfte. Wir sind für Käufer und Verkäufer zu gleichen Teilen provisionspflichtig tätig.
Wir weisen darauf hin, dass die von uns weitergegebenen Objektinformationen, Unterlagen, Pläne etc. vom Veräußerer stammen.
Eine Haftung für die Richtigkeit oder Vollständigkeit der Angaben übernehmen wir daher nicht. Es obliegt unseren Interessenten, die in den Verkaufsunterlagen enthaltenen Objektinformationen und Angaben auf ihre Richtigkeit hin zu überprüfen.
Unser Tipp:
Aufgrund der aktuellen Finanzierungsproblematik, raten wir Ihnen vor der ersten Hausbesichtigung ein Beratungsgespräch bei Ihrer Hausbank.
Wir behandeln Ihre Daten mit größtmöglicher Sorgfalt + vertraulich!
Ansprechpartner
Mobil: 004915776136228
info@otto-otto-immobilien.de
Energieausweis (Verbrauchsausweis)
37 kWh / (m²*a) Energieverbrauchskennwert
37 kWh / (m²*a) Energieverbrauchskennwert
37 kWh / (m²*a) Energieverbrauchskennwert
Weitere Informationen
| Wesentlicher Energieträger | Luft-/Wasser-Wärmepumpe |
| Energieausweis Ausstelldatum | 2022-01-06 |
| Energieausweis gültig bis | 2032-01-06 |
| Energieausweis Jahrgang | ab dem 1.5.2014 |
| Energieausweis Werteklasse | A |
| Energieausweis Baujahr | 2003 |
| Energieausweis Gebäudeart | Wohngebäude |
| Heizung | Fußbodenheizung |
| Befeuerung | Luft-/Wasser-Wärmepumpe |
Ich bin damit einverstanden, dass mir Karten von Google angezeigt werden. Es gelten die Datenschutzbedingungen von Google (https://policies.google.com/privacy).
Ich bin einverstanden